4 Carrowreagh Park, New Buildings, BT47 2RF

4 Carrowreagh Park, New Buildings, BT47 2RF

Carrowreagh Park, New Buildings, Londonderry, BT47 2RF

To Buy

£309,950

  • 28_DSCF0366.jpg
  • DJI_0236.4.jpg
  • 01_DSCF0123.1.jpg
  • 07_DSCF0165.jpeg
  • 09_DSCF0186.1.jpg
  • 08_DSCF0177.2.jpg
  • 10_DSCF0195.jpeg
  • 05_DSCF0150.1.jpg
  • 11_DSCF0207.jpeg
  • 16_DSCF0252.2.jpg
  • 12_DSCF0210.jpeg
  • 13_DSCF0225.jpeg
  • 14_DSCF0228.jpeg
  • 15_DSCF0234.1.jpg
  • 02_DSCF0125.1.jpg
  • 25_DSCF0318.1.jpg
  • 04_DSCF0141.jpeg
  • 26_DSCF0332.1.jpg
  • 27_DSCF0342.jpeg
  • 06_DSCF0156.jpeg
  • 19_DSCF0276.1.jpg
  • 22_DSCF0291.jpeg
  • 20_DSCF0285.jpeg
  • 21_DSCF0288.jpeg
  • 23_DSCF0297.1.jpg
  • 24_DSCF0306.1.jpg
  • 18_DSCF0273.jpeg
  • 17_DSCF0261.jpeg
  • DJI_0263.jpg
  • DJI_0268.2.jpg
  • DJI_0238.3.jpg
  • DJI_0260.2.jpg
  • DJI_0232.4.jpg

Property ID :

 RH-103987-property

Share

Added to Favorite

Favorite

Print

Bedrooms

5

Bathrooms

3

Description

Homepage Estate Agents are delighted to offer for sale this spacious detached chalet bungalow located within the popular and well established Carrowreagh Park development in Newbuildings. Occupying a generous site and enjoying open countryside views to the rear, No. 4 Carrowreagh Park offers flexible, well proportioned accommodation arranged over three levels, ideal for modern family living.

The ground floor comprises a welcoming entrance foyer, an open plan kitchen with dining area, separate reception room, utility room, and a family bathroom. The master bedroom is also located on this level and benefits from a walk-in wardrobe and ensuite, providing excellent convenience for ground floor living. Access to the integrated garage is also available from this level.

The lower ground floor offers additional living space including a spacious living room with direct access to a bright sun room overlooking the rear garden and surrounding countryside, along with a further room suitable for use as a home office, reception room or additional bedroom.

The first floor provides further accommodation including two well proportioned bedrooms, a main bathroom and additional storage areas, completing a versatile layout suited to a range of buyers.

Externally, the property benefits from a spacious driveway, integrated garage and generous gardens, with the rear aspect taking full advantage of the attractive rural outlook.

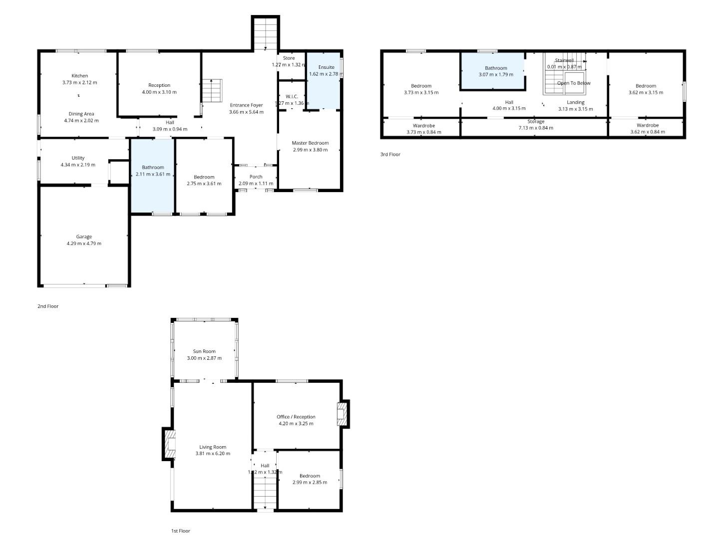
GROUND FLOOR ACCOMMODATION

_

PORCH

2.1 x 1.11 (6’10” x 3’7″)

ENTRANCE FOYER

5.65 x 3.7 (18’6″ x 12’1″)

KITCHEN

3.75 x 2.12 (12’3″ x 6’11”)

DINING AREA

4.75 x 2.0 (15’7″ x 6’6″)

UTILITY

4.35 x 2.2 (14’3″ x 7’2″)

HALLWAY

3.1 x 0.95 (10’2″ x 3’1″)

MASTER BEDROOM

3.8 x 3.0 (12’5″ x 9’10”)

ENSUITE

2.8 x 1.65 (9’2″ x 5’4″)

WARDROBE

2.3 x 1.4 (7’6″ x 4’7″)

BEDROOM 2

3.6 x 2.75 (11’9″ x 9’0″)

FAMILY BATHROOM

3.6 x 2.11 (11’9″ x 6’11”)

_

LOWER GROUND FLOOR

LIVING ROOM

6.2 x 3.8 (20’4″ x 12’5″)

SUN ROOM

3.0 x 2.9 (9’10” x 9’6″)

OFFICE / RECEPTION

4.2 x 3.25 (13’9″ x 10’7″)

BEDROOM 3

3.0 x 2.85 (9’10” x 9’4″)

_

FIRST FLOOR ACCOMMODATION

LANDING

7.15 x 3.15 (23’5″ x 10’4″)

BEDROOM 4

3.62 x 3.15 (11’10” x 10’4″)

BEDROOM 5

3.75 x 3.15 (12’3″ x 10’4″)

BATHROOM

3.1 x 1.8 (10’2″ x 5’10”)

INTEGRATED GARAGE

4.3 x 4.8 (14’1″ x 15’8″)

_

NOTES

Please note we have not tested any apparatus, fixtures, fittings, or services. All measurements are approximate. Some measurements are taken to widest point. Plans & photographs provided for guidance and illustrative only.

VIEWINGS

To arrange a private viewing please click ‘Email the Agent’ button.

HAVE A HOUSE TO SELL ? ?

Book your free Market Appraisal at homepageonline.co.uk

DERRY / LIMAVADY / NORTH COAST / BELFAST

Tenure: Freehold

Floor Plans

all_floors_carrowreagh.jpg

Property on Map

Mobile logo for homepage online

Homepage Estate Agents Northern Ireland